$444,900
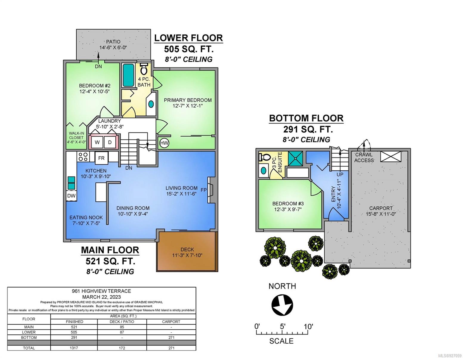
961 Highview Terrace
Sold
More information
Features & amenities
- Ceiling Fan(s)
- Dining Room
- Dining/Living Combo
- Eating Area
- Easy Access
- Hillside
- Landscaped
- No Through Road
- Private
Additional details
- MLS® # 927059
- Date Sold June 2023
- Type Residential
- Subtype Row/Townhouse
Listing is presented by
Hayward & MacPhail
Royal LePage Nanaimo Realty (NanIsHwyN)